Čerpacia nádrž SAKAL bez vystrojenia samonosná novej generácie
Kód: 162



Súvisiaci tovar
Podrobný popis
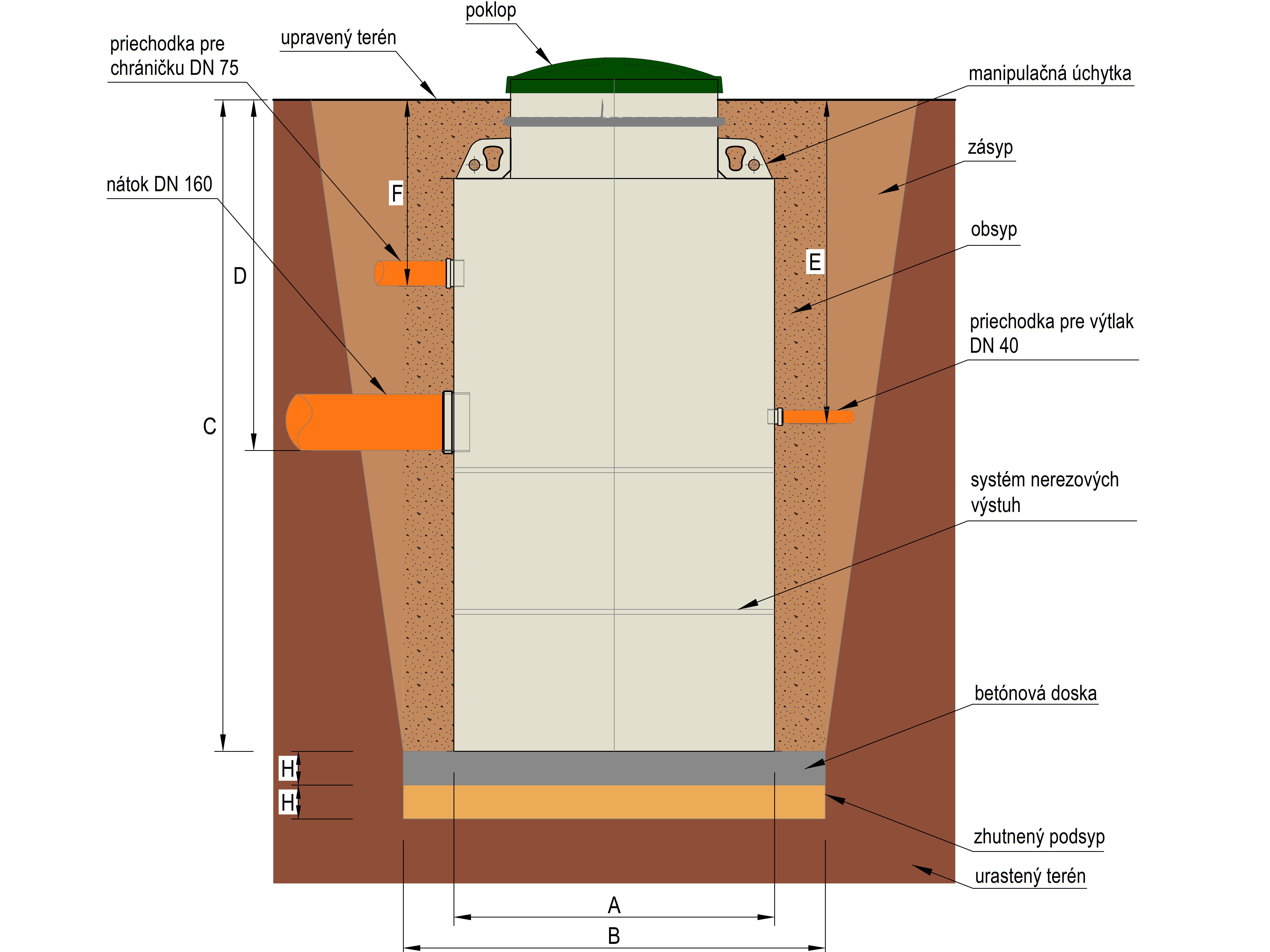
Teleso prečerpávacej nádrže je postavené na základe valcovitého tvaru s oceľovou výstužou.
Pri konštrukcii prečerpacej nádrže je použitý iba materiál najvyššej kvality. Prečerpávaciu nádrž je teda možné umiestniť prakticky do všetkých hydrogeologických podmienok bez obáv, že by mohlo dôjsť k jej poškodeniu pôdnymi vplyvmi.
Tento typ nádrže je určený na inštaláciu do trávnatej plochy bez zaťaženia dopravnou technikou. V prípade umiestnenia nádrže napr. do pojazdu je nutné vykonať dodatočné stavebné opatrenie.
Prečerpávacia nádrž je vďaka 100% výrobnejj príprave pripravená na napojenie na kanalizáciu bez improvizácií. V plášti nádrže je navarené nátokové hrdlo DN 160 na napojenie gravitačnej kanalizácie.
Nádrž je ďalej vybavená gumovou prechodkou DN 40 na pretiahnutie výtlačného potrubia a plastovou prechodkou DN 75 na pretiahnutie elektroinštalácie.
Plastová prečerpávacia nádrž je komplexne pripravená na inštaláciu vnútorného čerpacieho systému značiek HCP a NORIA podľa Vášho výberu a podľa účelu použitia.
Technické parametre
Prečerpávacia nádrž je určená na inštaláciu do pripraveného výkopu pod úroveň terénu. Vďaka unikátnej konštrukcii nie je potrebné čerpačku obetónovávať, čo Vám ušetrí značné množstvo času a prostriedkov. Prečerpávaciu nádrž uložíte priamo na pripravenú základovú dosku. Potom vykonáte jej obsyp.

| Priemer (A) | Priemer (B) | Hĺbka uloženia (C) | Hĺbka prestupu (D) | Hĺbka prestupu (E) | Hĺbka prestupu (F) | Hrúbka (H) |
| 0,95 m | 1,25 m | 1,93 m | 1,04 m | 1,02 m | 0,55 m | 0,10 m |
Dodatočné parametre
| Kategória: | Čerpacie šachty samonosné bez obetónovania |
|---|---|
| Záruka: | 2 roky |
| Hmotnosť: | 45 kg |
| EAN: | 8594212641790 |
| Materiál: | plast |
| Tvar: | kruhová |
| Typ: | samonosná |
| Umiestenie: | podzemná |
| Úžitkový objem čerpacej nádrže Sakal po úroveň nátoku: | V1= 0,6 m³ |
| Havarijný objem čerpacej nádrže Sakal: | V= 1,1 m³ |
Diskusia
Buďte prvý, kto napíše príspevok k tejto položke.